poprzedni

następny
powrót

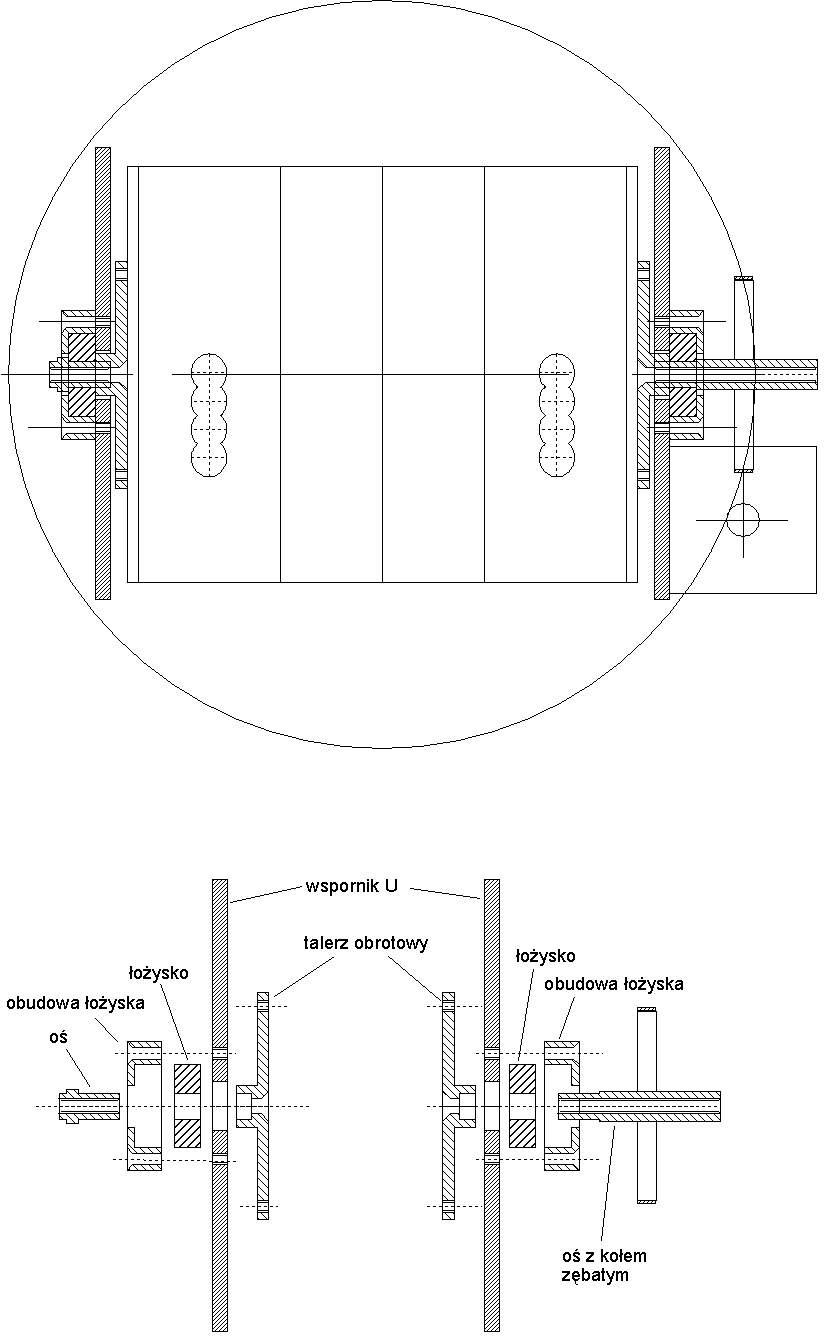
Rysunek 7.

Obiektyw MTO zamontowany w 'kołysce' łożyskowany jest w ramionach wspornika za pomocą dwóch półosi i łożyska oraz kilku dodatkowych elementów wsporczych i mocujących. Na jednej z półosi zamocowane jest koło zębate napędu a na drugiej koło z podziałką.