poprzedni

następny
powrót

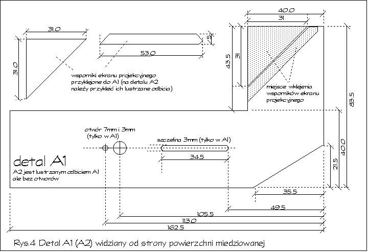
Na rys.4 pokazane są wymiary boków szukacza. Dla przypomnienia okrągłe otwory na potencjometr oraz podłużny otwór regulacyjny ostrości obrazu celownika wykonywane są tylko w części A1. Na rysunku pokazane są także detale służące do prowadzenia i mocowania ekranu projekcyjnego oraz miejsce ich zamocowania 'od wewnątrz' konstrukcji szukacza na ściankach bocznych A1 i A2. Elementy te należy nakleić na zaznaczone pola za pomocą kleju 'poxipol - 10 minut' wstawiając na czas klejenia pomiędzy nie ekran projekcyjny Pomaga to we właściwym ustaleniu dystansu pomiędzy wspornikami ekranu projekcyjnego na ok. 1.3-1.4mm (grubość płytki ekranu).