Szukacz
powinien być zamontowany na teleskopie równolegle od osi optycznej teleskopu.
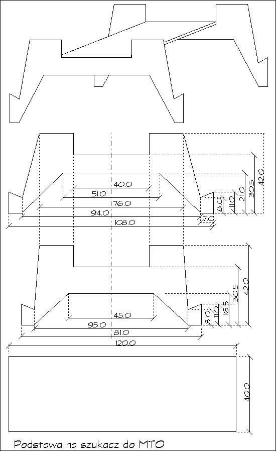
Moja propozycja mocowania to składający się z 3 części wspornik szukacza
montowany na tubusie teleskopu za pomocą opasek gumowych. Na sąsiednim
rysunku znajdziesz opis podstawy jaką wykonałem do mojego teleskopu na
bazie MTO. Ponieważ MTO ma różne wymiary zewnętrzne w różnych miejscach
tubusa, ścianki wspornika mają też różne wymiary dopasowane do krzywizny
obiektywu !. Wszystkie części wykonane są z laminatu jednostronnie foliowanego
miedzią i lutowane ze sobą podobnie jak wcześniej opisana obudowa szukacza.
|
![]() |
|
Na
tym zdjęciu widać wspornik szukacza oraz leżący obok szukacz. |
![]() |
|
Po
założeniu szukacza na wspornik należy oba elementy połączyć ze sobą. Najłatwiej
jest zrobić to za pomocą dwóch gumek recepturek tak jak to pokazuje fotografia
obok. |
![]() |
|
Tak
wygląda obiektyw MTO z założonym szukaczem. Wspornik mocowany jest do
obiektywu za pomocą pary dłuższych i mocniejszych naciągów gumowych. |
![]() |
|
Na
tej fotografii widać szukacz zamontowany na kompletnym napędzie MTO. |
![]() |
|
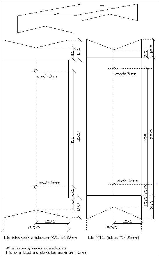
| Na sąsiednich rysunkach podaję wymiary wsporników pionowych elementów wspornika szukacza dla tubusów o rozmiarach 100-150mm oraz 150-210mm. 210mm ma tubus do popularnego 'szukacza komet'. Odpowiednim kolorem zaznaczyłem wymiary detali pasujących optymalnie do podanego rozmiaru tubusa jakkolwiek wspornik wykonany np. dla tubusa 100mm 'od biedy' pasował będzie dla tubusów o większych rozmiarach np. 120, 150mm. Zasada ta nie obowiązuje w drugą stronę tzn. wspornik przeznaczony od razu dla tubusa 210mm nie nadaje się do zastosowania z mniejszymi rozmiarami tubusów. Poziomy element wspornika jest taki sam jak w opisanym wsporniku do MTO czyli ma rozmiary 40/120mm. | ![]() |
|
| Testy wykazały, że wsporniki wykonane z laminatu są dość delikatne. Następną propozycją jest wspornik wykonany z blachy stalowej lub aluminiowej wykonany z jednego kawałka blachy wygiętej z obu stron. Dla MTO zaginane części mają różne długości bo opierane są w róznychmiejscach tubusa mającego różne średnice. Sam szukacz montowany jest do wspornika za pomocą wkrętów wkręcanych do podstawy szukacza (podstawę D należy uzupełnić w dwie nalutowane nakrętki M3) | ![]() |
|