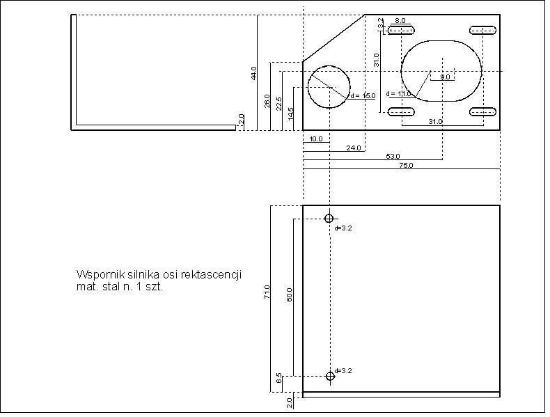
Rysunek wspornika silnika dla osi rektascencji |
|
|
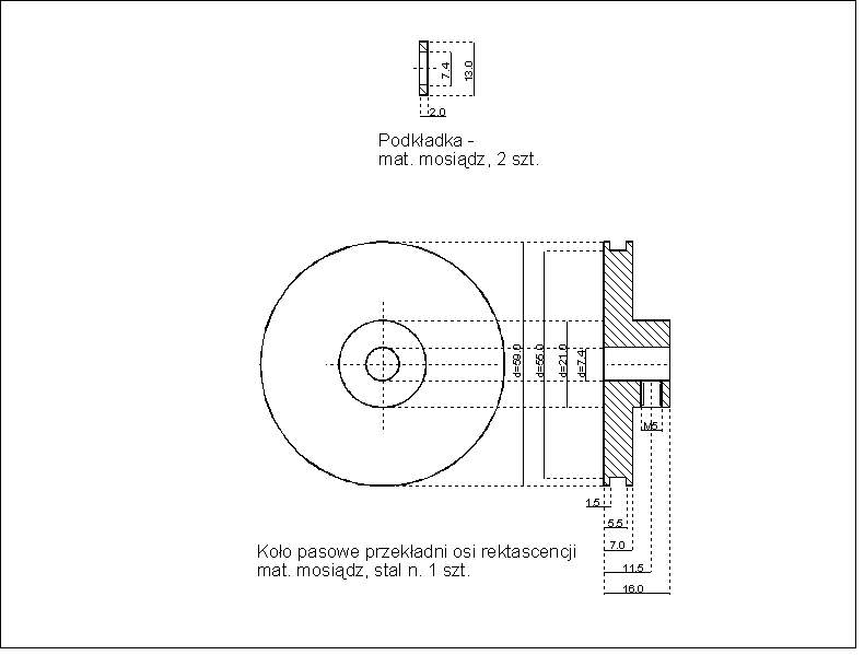
Koło przekładni na mikropasku T2.5 dla osi rektascencji. Pasek ma szerokość 4mm i długość 200mm. Koło pasowe na osi silnika ma średnicę 9mm oraz 12 zębów z modułem 2.5mm. Elementem dodatkowym jest podkładka kasująca luz na osi ślimaka przekładni rektascencji. |
![]() |
|
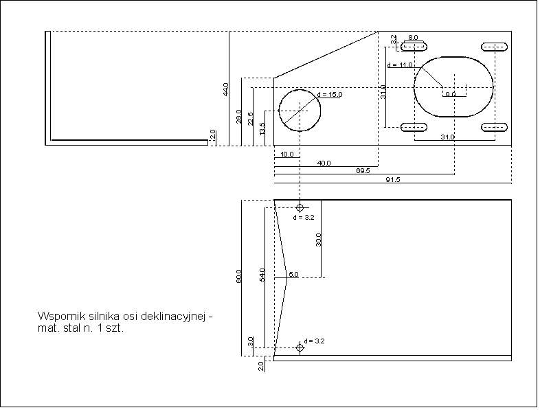
Rysunek wspornika silnika dla osi deklinacji |
![]() |
|
Koło przekładni na mikropasku T2.5 dla osi deklinacji. Pasek ma szerokość 4mm i długość 200mm. Koło pasowe na osi silnika ma średnicę 9mm oraz 12 zębów z modułem 2.5mm. |
![]() |
|